Project 3: Oxford မြို့အတွက် အပျော်တမ်းရုပ်ရှင်စတူဒီယို
Section 1: နိဒါန်း - ဖန်တီးသူများအတွက် နေရာတစ်ခု
ဒီပရောဂျက်ကတော့ တစ်နှစ်တာလုံးရဲ့ပေါင်းချုပ်ဖြစ်တယ်။ အင်္ဂလန်နိုင်ငံ အောက်စဖို့မြို့ရဲ့ အပျော်တမ်းရုပ်ရှင်ဝါသနာအိုးများအတွက် မြို့ရဲ့မြောက်ဘက်မှာရှိတဲ့ Jericho(ဂျရီခို) ရဲ့ ဆိပ်ကမ်းလေးမှာ ရုပ်ရှင်စတူဒီယိုတစ်ခုဖန်တီးထားပါတယ် ။ Project 2 မှာ ဖော်ထုတ်ခဲ့တဲ့ ရပ်ရွာရဲ့သမိုင်း၊ တန်ဖိုးထားမှုများနဲ့ ဖန်တီးမှုစိတ်ဓာတ်တို့ကိုအခြေခံ၍ ဘက်စုံသုံးနိုငသော စတူဒီယိုတစ်ခု (Multi-hub Studio) ကို ဒီဇိုင်းရေးဆွဲထားပါတယ်။ သာမန်အဆောက်အအုံတစ်ခုမဟုတ်ဘဲ ဖန်တီးသူဒေသခံတွေ၊ ဒီတူးမြောင်းတစ်လျှောက်နေထိုင်သွားလာလှုပ်ရှားနေကြတဲ့ပြည်သူတွေအားလုံးရဲ့ဘဝကို ပိုမိုမြှင့်တင်နိုင်ဖို့ရည်ရွယ်တဲ့ စုရပ်တစ်ခုဖြစ်ပါတယ်။




ဘယ်မှညာသို့၊ 'the Workshop Space'၊ 'The Studio/Workshop'၊ 'The Blackout Space' နှင့် 'The Viewpoint'
Section 2: Character Study ( ဇာတ်ကောင်လေ့လာမှု)
နေရာတစ်ခုကို ဒီဇိုင်းမဆွဲမီ၊ အသုံးပြုမယ်လို့ မိမိရည်ရွယ်မယ့်သူကို နားလည်ဖို့ သိပ်အရေးကြီးတယ်။ Oxfordမြို့မှာ ရုပ်ရှင်စတူဒီယိုတစ်ခုဖန်တီးမယ်ဆို အဆင်ပြေနိုင်မလား။ ဒီလိုနဲ့Researchလုပ်တယ်။ Oxford University ရဲ့ OUFF ကဲ့သို့သော တက္ကသိုလ်အသင်းအဖွဲ့များမှ Film Oxford ကဲ့သို့သော ဒေသခံအဖွဲ့များအထိ— ရိုက်ကူးရေးကို စိတ်ဝင်စားတဲ့ ဝါသနာရှင်တွေ၊ ကားကောင်းတွေဆို ကြည့်ချင်တဲ့ရုပ်ရှင်ချစ်သူတွေ စတဲ့ ကွဲပြားတဲ့အသိုက်အဝန်းတစ်ခုကို မြင်တွေ့ခဲ့ရတယ်။ ဒီ 'အသိုက်အဝန်း' ခေါ် Userတွေအတွက် သင်ယူခြင်းနှင့် ပူးပေါင်းဆောင်ရွက်ခြင်းမှသည် ထုတ်လုပ်ရေးနှင့် လူထုရှေ့မှောက်ပြသခြင်းအထိ၊ ဖန်တီးမှုဖြစ်စဉ်၏ အဆင့်တိုင်းကို ပံ့ပိုးပေးနိုင်မယ့် ပြောင်းလွယ်ပြင်လွယ်တဲ့ နေရာတစ်ခုလိုအပ်တယ်ဆိုတာလဲ သိခဲ့ရတယ်။



ဘယ်မှညာသို့၊ 'ဘောလုံးအနုပညာရှင်'၊ 'တက်တူးပညာရှင်' နှင့် 'ရုက္ခဗေဒပညာရှင်'
Section 3: အဓိကသဘောတရား - 'ကြည့်ရှုရန်နှင့် ကြည့်ရှုခံရန်'
ဒီProjectရဲ့ အဓိကဗိသုကာသဘောတရားကို Aldo Rossi ၏ Teatro del Mondo မှ စိတ်ကူးရယူထားပါတယ်။ Rossi ကVeniceမြို့ရဲ့တူးမြောင်းတွေပေါ် မှာ ရေပေါ်ပြဇာတ်ရုံတစ်ခုဖန်တီးခဲ့တယ်။ သစ်သားနဲ့ဖန်တီးထားတယ်။ လှေတစ်စီးပေါ်မှာတည်ဆောက်ထားတယ်။ ယဥ်ကျေးမှုတွေပေါင်းစပ်ထားတဲ့ မီးရှူးတိုင်တစ်ခုလိုပါပဲ။
သူ့ဆီက ကျနော်သိလိုက်ရတာက"ကြည့်ရှုရန်နှင့် ကြည့်ရှုခံရန်" "To see and be seen" ဆိုလိုတာကတော့ ပြဇာတ်ရုံထဲကသူတွေက Veniceမြို့ရဲ့တူးမြောင်းတွေ လှေလေးတွေ ရေပေါ်ဘဝလေးတွေကို လှမ်းမြင်နေရတယ် 'To See' ။ ဟော အများပြည်သူတွေကလဲ အင်မတန်ထူးဆန်းလှတဲ့အဆောက်အဦးရဲ့ မြင်သာတဲ့ ဒီဇိုင်းကြောင့် ငေးမောကြကုန်တယ်။ အဆောက်အဦးက အကြည့်ခံနေရတယ်။ 'Be Seen' ။ ဒီပုံစံကြောင့် စင်မြင့်နှင့် ပရိသတ်၊ စတူဒီယိုနှင့် မြို့ပြတို့ကြားက ခြားနားမှုကို မှေးမှိန်စေခဲ့တယ်။




ဘယ်မှညာသို့၊ Teatro del Mondo နှင့် ၎င်း၏အတွင်းပိုင်း၊ Jericho နှင့် Venice
Section 4: အပြီးသတ်ဒီဇိုင်း - ဗိသုကာပုံကြမ်းများ
နောက်ဆုံးဒီဇိုင်းကတော့ အဓိကနေရာ ၃ ခုနဲ့ဖွဲ့စည်းထားတယ်။ ကျစ်လစ်တယ်။ ဒေါင်လိုက်အဆောက်အဦးတစ်ခုဖြစ်တယ်။
- မြေညီထပ်မှာ ရိုက်ကူးရေးနဲ့ထုတ်လုပ်ရေးအတွက် Workshop နဲ့ Studio,
- ပထမထပ်မှာ ပြသမှုများနှင့် ဟောပြောပွဲများအတွက် Black-out Cinema
- ဒုတိယ သို့မဟုတ် အပေါ်ဆုံးထပ်မှာ အပြင်ကို လှမ်းမြင်နေရတဲ့ Viewpointတို့ ပါဝင်ပါတယ်။





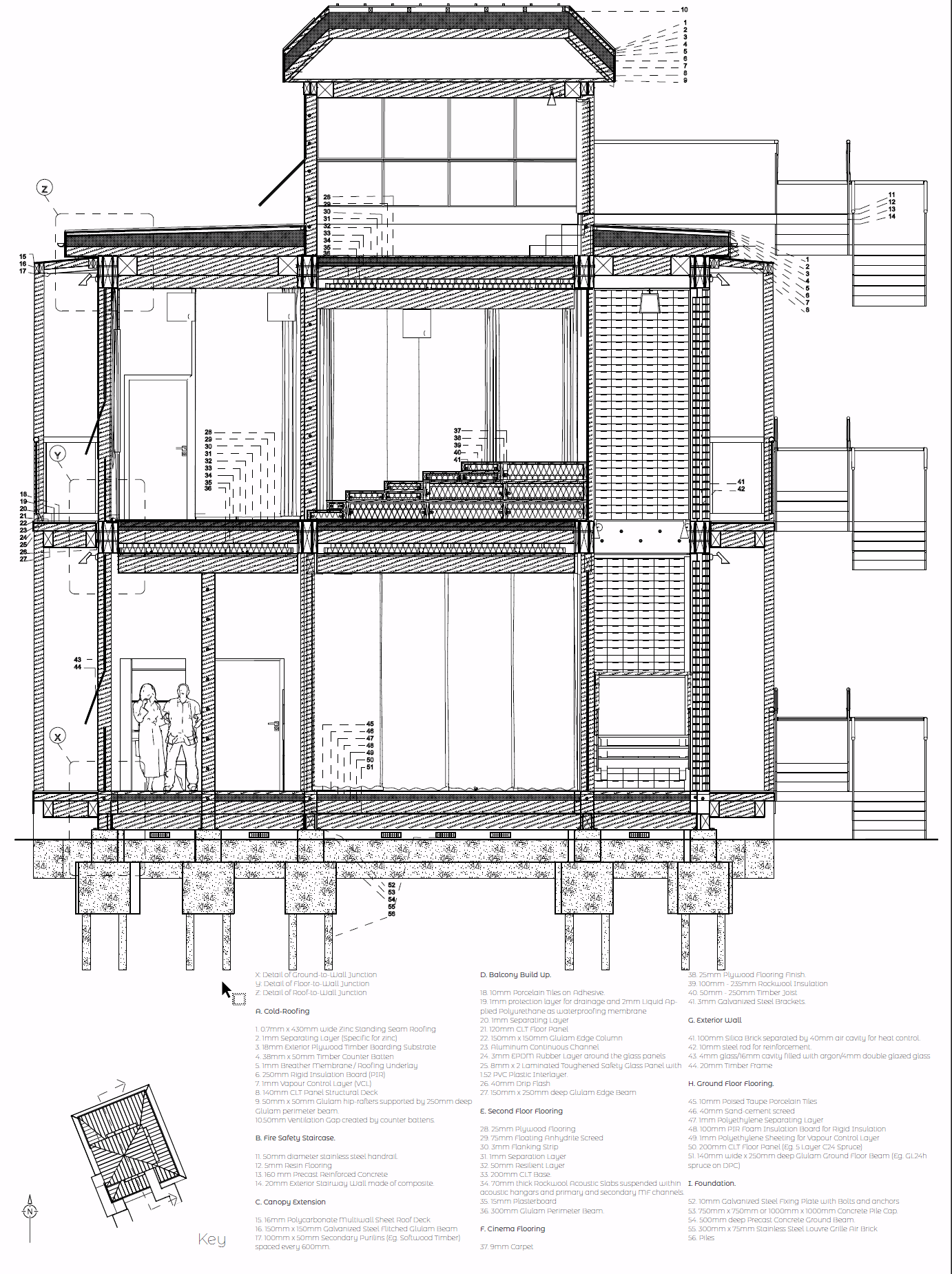
Section 5: Structure (ဖွဲ့စည်းပုံ)၊ Materials (ပစ္စည်းများ) နှင့် စွမ်းဆောင်ရည်အသေးစိတ်
ရိုးရှင်းတဲ့ပစ္စည်းများကို အသုံးပြုထားပါတယ်။ timber frame သည် အဓိကဖွဲ့စည်းပုံကို ပံ့ပိုးပေးပြီး၊ သင်္ဘောကျင်း၏ စက်မှုအမွေအနှစ်ကို ရည်ညွှန်းပါတယ်။ (Silica Brick) ဖန်အုတ်များကဲ့သို့သော ခေတ်မီပစ္စည်းများနှင့် ပေါင်းစပ်ထားပါတယ်။ ညဘက်အမြင်အာရုံကို ဆွဲဆောင်နိုင်တယ်၊ အဆောက်အဦးကိုလဲ အလင်းစိမ့်ဝင်စေနိုင်တယ်။ acoustic flooring systems တွေလဲထည့်သွင်းထားပါတယ်။ ရုပ်ရှင်ထုတ်လုပ်ရေးရဲ့ များပြားလှတဲ့ လိုအပ်ချက်တွေကို ပြည့်မီစေရန် နည်းပညာပိုင်းဆိုင်ရာ စွမ်းဆောင်ရည်ကောင်းမွန်စေရန်အတွက် ဒီဇိုင်းထုတ်ထားပါသည်။



ဘယ်မှညာသို့၊ 3D primary နှင့် secondary structural model၊ အသေးစိတ် ပစ္စည်းတည်ဆောက်ပုံ နှင့် acoustic flooring တည်ဆောက်ပုံ diagram။
Section 6: မျှော်မှန်းချက် - Jericho အတွက် အထင်ကရနေရာသစ်တစ်ခု
နောက်ဆုံးဒီဇိုင်းလေးက ဖန်တီးခြင်း၊ သင်ယူခြင်းနှင့် မျှဝေခြင်းတို့အတွက် နေရာတစ်ခုဖြစ်ပါတယ်။ သမိုင်းဝင် Canal ကမ်းဘေးတွင် ညင်သာစွာတည်ရှိတယ်။ ပတ်ဝန်းကျင်ကိုလေးစားတယ်၊ အဆောက်အဦးအတွင်းက အလင်းအမှောင်ကို စိတ်တိုင်းကျပြုပြင်ခြယ်လှယ်နိုင်တယ်။ Oxfordမြို့ရဲ့ မျိုးဆက်သစ် ဖန်တီးသူများအတွက် အဆောက်အဦးလေးတစ်ခုပင်။




Rendered Views (ကွန်ပျူတာဖြင့်ဖန်တီးထားသော ပုံရိပ်များ)
Section 7: Conclusion
ဤရုပ်ရှင်စတူဒီယိုက ကျွန်တော့်၏ကိုယ်ပိုင်အိပ်ရာဆိုတဲ့ အသေးငယ်ဆုံးနေရာလေးမှ အစပြုခဲ့တယ်။ ချစ်မြတ်နိုးရသော Oxfordက သမိုင်းဝင်ရပ်ကွက်တစ်ခု၏ ရှုပ်ထွေးသောသမိုင်း၊ နိုင်ငံရေးနှင့် လူမှုအသိုက်အဝန်းကို လွှမ်းခြုံနိုင်သည်အထိ ကြီးမားလှသော တစ်နှစ်တာရှည် စူးစမ်းလေ့လာမှု၏ အထွတ်အထိပ်ကို ကိုယ်စားပြုပါတယ်။
ကိုယ့်ရဲ့ဝါသနာ၊ ရပ်ရွာနဲ့လူမှုအသိုင်းအဝိုင်းရဲ့လိုအပ်ချက်၊ လက်တွေ့ဆန်းသစ်တည်ထွင်မှု ဒါတွေအားလုံးကိုပေါင်းစပ်ပြီး ဗိသုကာပညာရဲ့ ဖန်တီးနိုင်စွမ်းကို အသုံးချခဲ့ခြင်းဖြစ်ပါတယ်။ အောင်မြင်တဲ့ ဒီဇိုင်းဖြစ်စဥ်တစ်ခုအဖြစ်မြောက်ခဲ့တယ်။ Oxford Brookesရဲ့ ဒုတိယနှစ်ရဲ့အကောင်းဆုံးPortfolioထဲ ဆန်ကာတင်စာရင်းဝင်ခဲ့ပါတယ်။ ဂုဏ်ယူရတဲ့ အလုပ်တစ်ခုဆိုလဲမမှားပါဘူး။
ဆရာ/မ များ၏ တုံ့ပြန်ချက် နှင့် ကိုယ်ပိုင်သုံးသပ်ချက်
ဆရာ/မ များ၏ အကဲဖြတ်ချက် (Critical Context 2 & Portfolio Assessment): ဒီနောက်ဆုံးပရောဂျက်ကို တစ်နှစ်တာလုံးရဲ့ သုတေသနတွေကို အောင်မြင်စွာပေါင်းစပ်ပြီး ပြည့်စုံ thoughtful ဖြစ်တဲ့ အဆိုပြုချက်တစ်ခုအဖြစ် တင်ပြနိုင်ခဲ့တဲ့အတွက် အထူးချီးကျူးခဲ့ကြတယ်။
- အားသာချက်များ: ပရောဂျက်က site နဲ့ကိုက်ညီတဲ့ "ရည်မှန်းချက်ကြီးပြီး စိတ်ဝင်စားစရာကောင်းတဲ့ အဆိုပြုချက်" တစ်ခုဖြစ်တယ်။ Aldo Rossi ရဲ့ Teatro del Mondo ကို precedent အဖြစ်သုံးတာက "အလွန်သင့်လျော်ပြီး ကောင်းမွန်စွာပေါင်းစပ်နိုင်ခဲ့တယ်"။ နောက်ဆုံးဒီဇိုင်းက "လှပစွာရေးဆွဲပြီး render လုပ်ထားတယ်"၊ ပရောဂျက်သုံးခုလုံးကို ချိတ်ဆက်ထားတဲ့ ဇာတ်ကြောင်းက "အလွန်ခိုင်မာတယ်"။ ဆရာတွေက ဒါကို "အလွန်အောင်မြင်တဲ့ ပရောဂျက်တစ်ခုနဲ့ နှစ်တစ်နှစ်ရဲ့ ကောင်းမွန်တဲ့အဆုံးသတ်" လို့ သတ်မှတ်ခဲ့ကြတယ်။
- တိုးတက်ရန်လိုအပ်သည့် အပိုင်းများ: အဆောက်အအုံပတ်လည်က အများပြည်သူနေရာကို ပိုပြီး develop လုပ်သင့်ပြီး၊ ဖန်အုတ်မျက်နှာစာရဲ့ materiality ကို ပိုအသေးစိတ်လေ့လာသင့်တယ်လို့ အကြံပြုခဲ့ကြတယ်။
ကိုယ်ပိုင်သုံးသပ်ချက်: ဒီပရောဂျက်က ကျနော့်အတွက် ပုဂ္ဂိုလ်ရေးအရရော ပညာရေးအရပါ တကယ့်ကို Durchbruch တစ်ခုဖြစ်ခဲ့တယ်။ Project 2 က လေ့လာသုံးသပ်မှုတွေနဲ့ Project 1 က လက်တွေ့လုပ်ဆောင်တဲ့စိတ်ဓာတ်တွေ နောက်ဆုံးမှာ ပေါင်းစပ်ပြီး ကျနော်တကယ်ဂုဏ်ယူနိုင်တဲ့ ဗိသုကာလက်ရာတစ်ခုအဖြစ် ထွက်ပေါ်လာခဲ့တဲ့ အခိုက်အတန့်ပါပဲ။ ဆန်ခါတင်စာရင်းဝင်ခဲ့တာက ကျနော်လမ်းကြောင်းမှန်ပေါ်ရောက်နေပြီဆိုတာကို အတည်ပြုပေးလိုက်သလိုပဲ။
ဆရာတွေရဲ့ feedback တွေကလည်း တိကျမှန်ကန်ခဲ့တယ်—အဆောက်အအုံက မြေပြင်နဲ့ ဘယ်လိုထိတွေ့မလဲ၊ လူထုနဲ့ ဘယ်လိုချိတ်ဆက်မလဲဆိုတာကို ပိုစဉ်းစားဖို့လိုပြီး၊ မျက်နှာစာရဲ့ နည်းပညာအသေးစိတ်ကို ပိုပြီးတွန်းအားပေးလုပ်ဆောင်ဖို့ လိုအပ်ခဲ့တယ်။ ဒီနေ့အထိ ဒီလက်ရာကို ပြန်ကြည့်တိုင်း ကျနော်ပြုံးမိတုန်းပဲ။ ကိုယ်ဂုဏ်ယူရတဲ့ ပရောဂျက်တစ်ခုမှာတောင် အမြဲတမ်း ပိုပြီးအသေးစိတ်လေ့လာစူးစမ်းစရာ အဆင့်တစ်ခုရှိနေသေးတယ်ဆိုတာကို ဒါက သင်ပေးခဲ့တယ်။ ဗိသုကာဆိုတာ ဘာဖြစ်နိုင်သလဲဆိုတာကို ကျနော့်ကို နားလည်စေခဲ့တယ်- ပထမဆုံး မသေမချာစိတ်ကူးလေးကနေ နောက်ဆုံးအသေးစိတ်ကျတဲ့ တည်ဆောက်မှုအထိ ပြီးပြည့်စုံတဲ့ ဇာတ်လမ်းတစ်ပုဒ်ပါပဲ။