Oxford Brookes School of Architecture Second Year Project 3: Oxford မှ ရုပ်ရှင်စတူဒီယို - Uncut Portfolio Submission
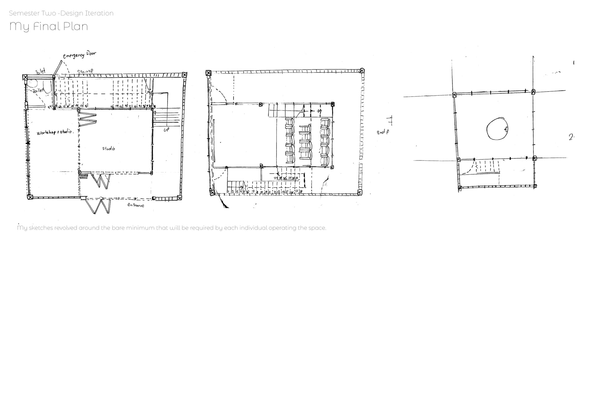
ဒါကတော့ တကယ့်လက်တွေ့အလုပ်ပါ။ အကျဉ်းချုပ်မဟုတ်ဘူး၊ highlight တွေမဟုတ်ဘူး—ဒါက ကျနော့်ရဲ့ tutor တွေကိုတင်ပြခဲ့တဲ့၊ 'Portfolio of the Year' အတွက် ဆန်ခါတင်စာရင်းဝင်စေခဲ့တဲ့၊ စာမျက်နှာအလိုက်ပြည့်စုံတဲ့ portfolio ပါပဲ။
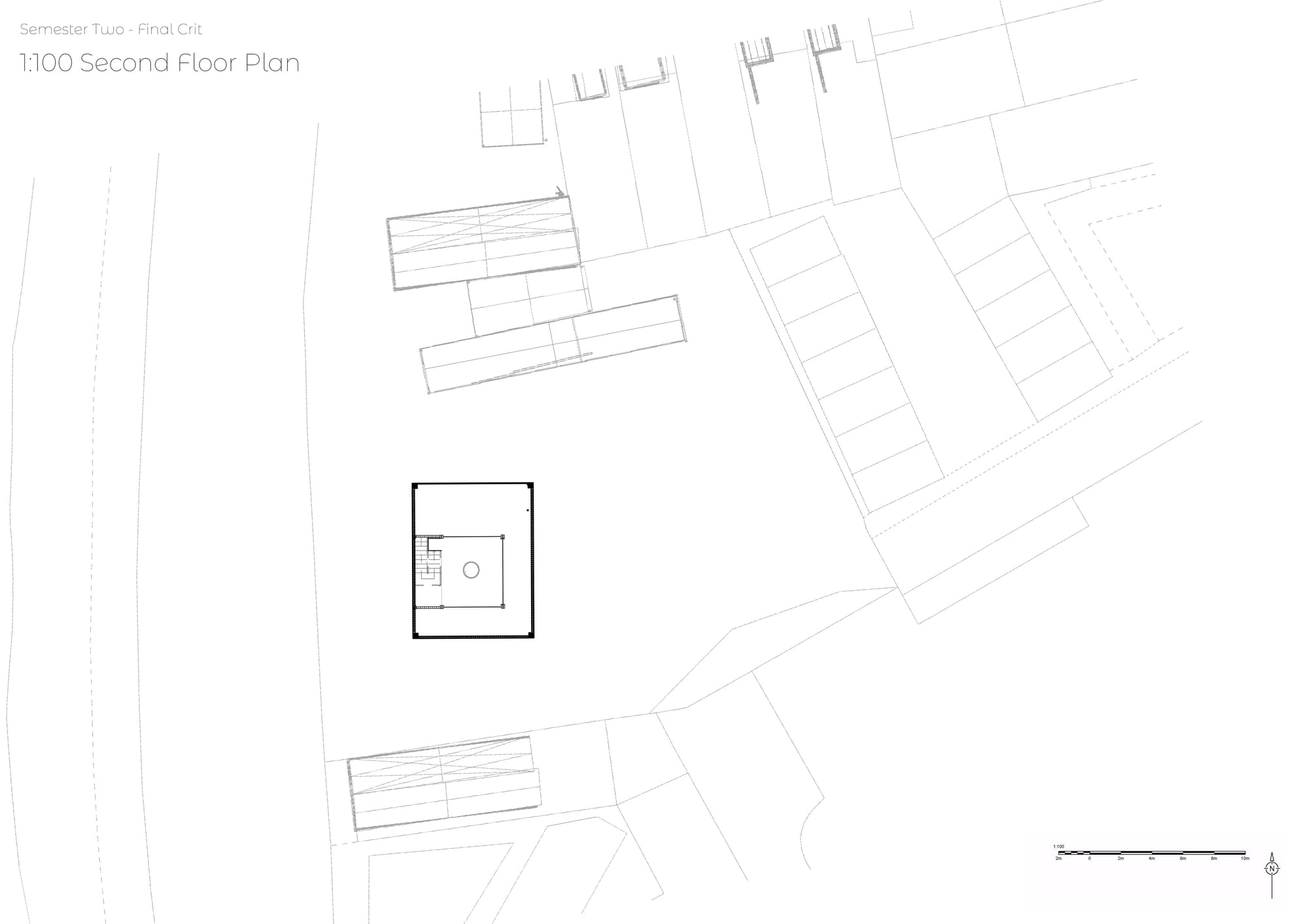
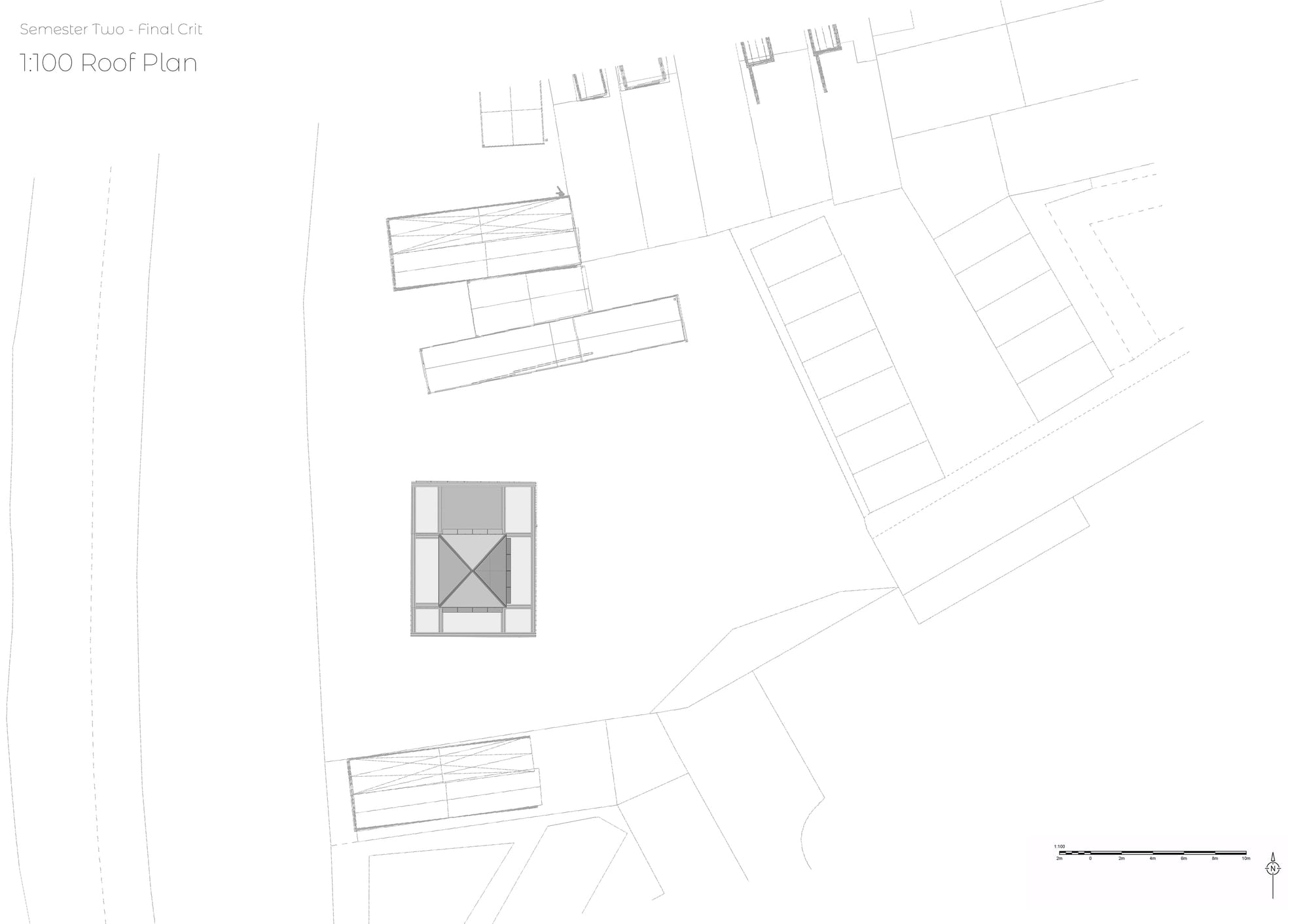
ဒီထဲမှာတော့ တစ်နှစ်တာလုံးကရခဲ့တဲ့ သင်ခန်းစာတွေအားလုံးကို ပေါင်းစပ်ပြီး၊ သုတေသနကနေ တကယ့်ဗိသုကာလက်ရာတစ်ခုအဖြစ် အသက်သွင်းခဲ့တဲ့ နောက်ဆုံးခရီးစဉ်အပြည့်အစုံပါဝင်ပါတယ်။ Aldo Rossi ရဲ့ အတွေးအခေါ်တွေကနေ Jericho ရဲ့ လူမှုအသိုင်းအဝိုင်းအထိ၊ အားလုံးက ဒီဒီဇိုင်းထဲမှာ ပေါင်းစပ်ပါဝင်နေပါတယ်။















































































Portfolio အပြည့်အစုံကို PDF အဖြစ်ရယူရန်
Professional အသုံးပြုရန်၊ သို့မဟုတ် offline သိမ်းဆည်းထားလိုသူများအတွက်၊ ဤ portfolio ၏ high-resolution PDF version ကို အောက်ပါနေရာတွင် download ရယူနိုင်ပါသည်။